Za arhitekte
Dobrodošli na MIKovi spletni strani,
namenjeni izključno arhitektom, projektantom in gradbenim izvajalcem. Za vas smo pripravili tehnične izrise (PDF in DWG) prezračevalnih tehničnih detajlov.
Naša strokovna ekipa tehnologov in projektantov vam je ves čas na voljo, da vam čim bolj olajšamo načrtovanje vaših projektov z MIK elementi prezračevalnih sistemov MIKrovent.
Z levim klikom na ikono odprete PDF v novem zavihku. Z desnim klikom in izbiro “Shrani povezavo kot…” shranite PDF na vašo napravo.
Autocad DWG-je prenesite s klikom na sliko.
Montaža na razširitev zgoraj
Vertikalni prerez zgoraj
MIKrovent 35/40
dwg – 2 MB
Montaža na razširitev v kombinaciji z podometno roleto
Vertikalni prerez zgoraj
MIKrovent 35/40
dwg – 2 MB
Montaža na razširitev zgoraj v kombinaciji z zunanjo žaluzijo
Vertikalni prerez zgoraj
MIKrovent 35/40
dwg – 2 MB
Montaža na stransko razširitev (levo/desno od okna)
Vertikalni prerez zgoraj
MIKrovent 35/40
dwg – 2 MB
Montaža na razširitev spodaj
Vertikalni prerez spodaj
MIKrovent 35/40
dwg – 2 MB
Montaža na steno
Vertikalni prerez bočno
MIKrovent 35/40
dwg – 2 MB
Montaža na steno
Vertikalni prerez bočno
MIKrovent 60/120
dwg – 2 MB
MIKrovent 35/40
- Vertikalni prerez zgoraj, montaža na razširitev zgoraj
- Vertikalni prerez zgoraj, montaža na razširitev v kombinaciji z podometno roleto
- Vertikalni prerez zgoraj, montaža na razširitev zgoraj v kombinaciji z zunanjo žaluzijo
- Vertikalni prerez zgoraj, montaža na stransko razširitev (levo/desno od okna)
- Vertikalni prerez spodaj, montaža na razširitev spodaj
- Vertikalni prerez bočno, montaža na steno
MIKrovent 60/120
- Horizontalni prerez bočno, montaža na steno
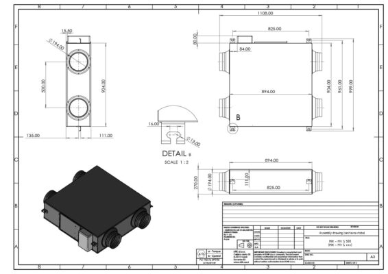
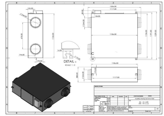
SESTAVNE RISBE z merami
PDF datoteke prenesite s klikom na sliko.
Sestavna risba MIKrovent® 350
Sestavna risba MIKrovent® 500
Sestavna risba MIKrovent® 800
MIKrovent 3D objekti – 350, 500 in 800
Za kopiranje STEP datotek prenesite s klikom na sliko
3D objekt MIKrovent® 350
3D objekt MIKrovent® 500
3D objekt MIKrovent® 800












